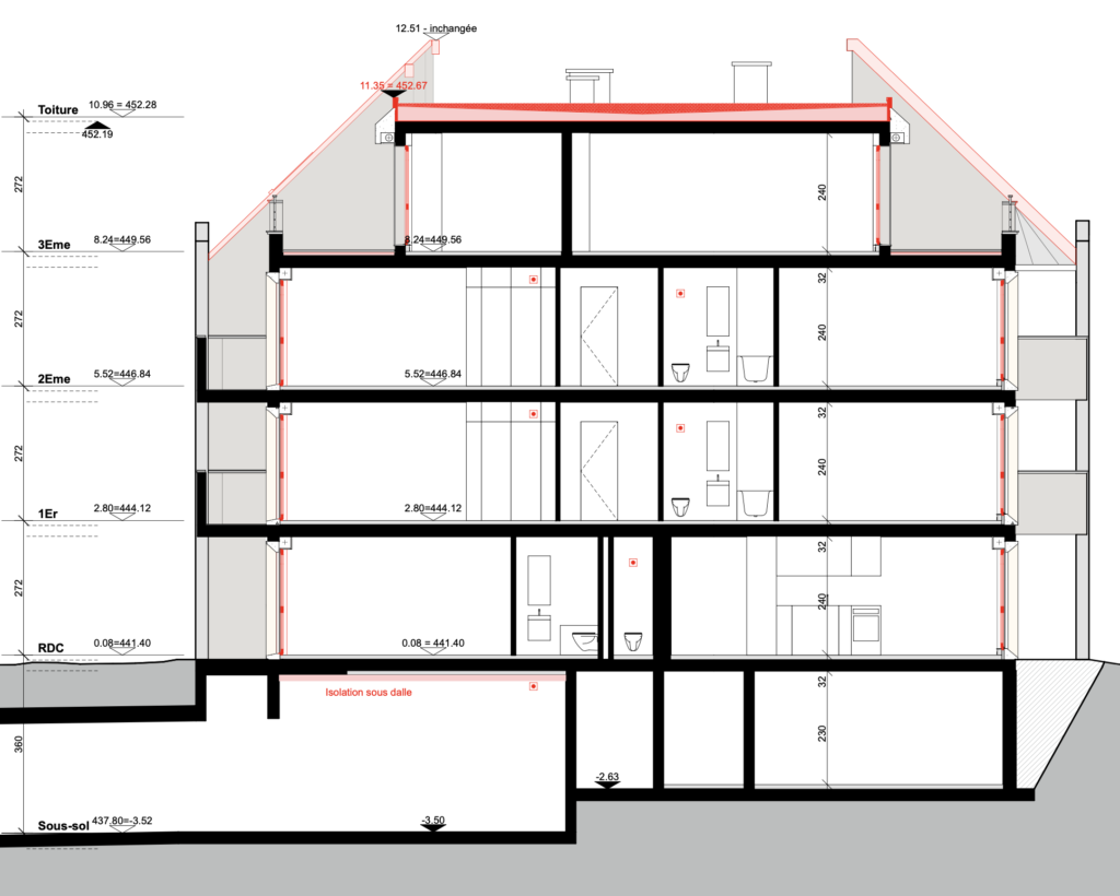
Rénovation de l’enveloppe thermique d’un immeuble de logements de X étages et sous-sol
Rénovation énergétique de l’enveloppe d’un immeuble d’habitation
Perly-Certoux - GE
- Date du projet : 2025
- Date de réalisation : 2026
- Surface brute de plancher : 3936 m2


