La société
Présentation
Collaborateurs
Clients
Plan-net
Architecture
Artisanal
Bureau
Commercial
En cours
Logement
Restauration
Contact
Architecture
Tous
Artisanal
Bureau
Commercial
En cours
Logement
Restauration
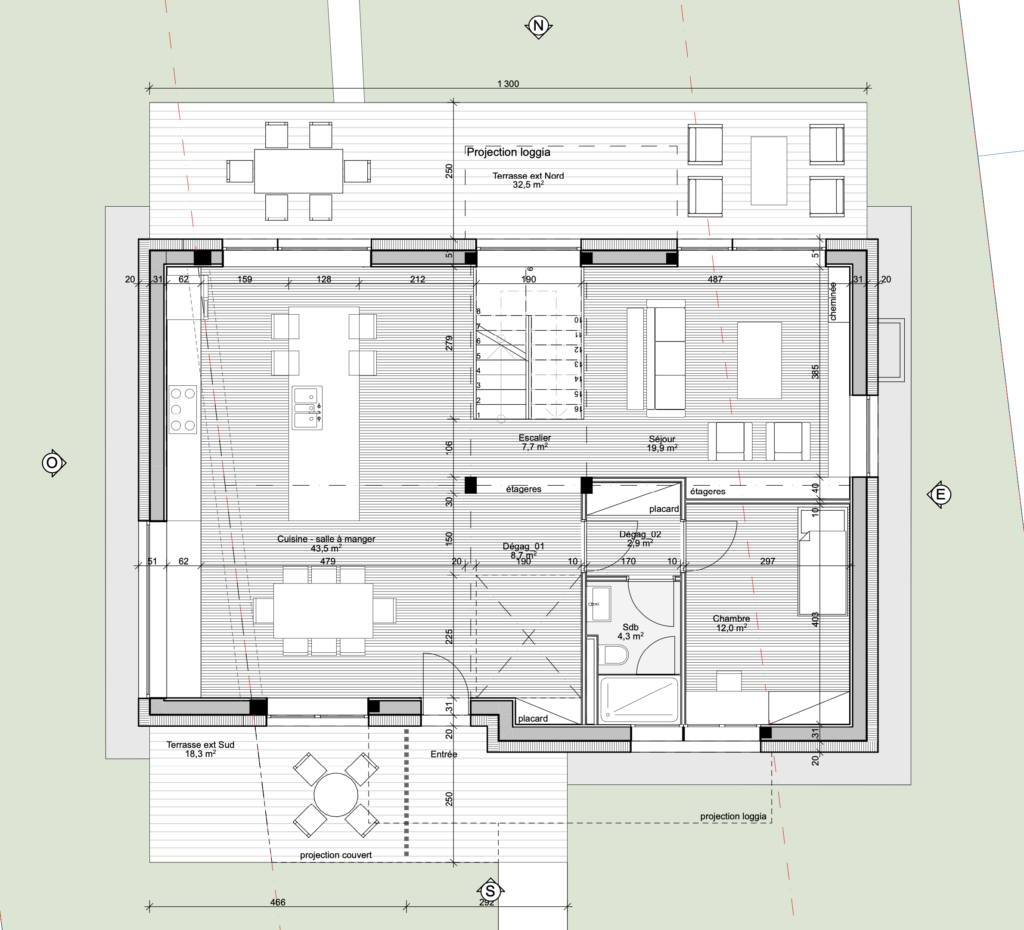
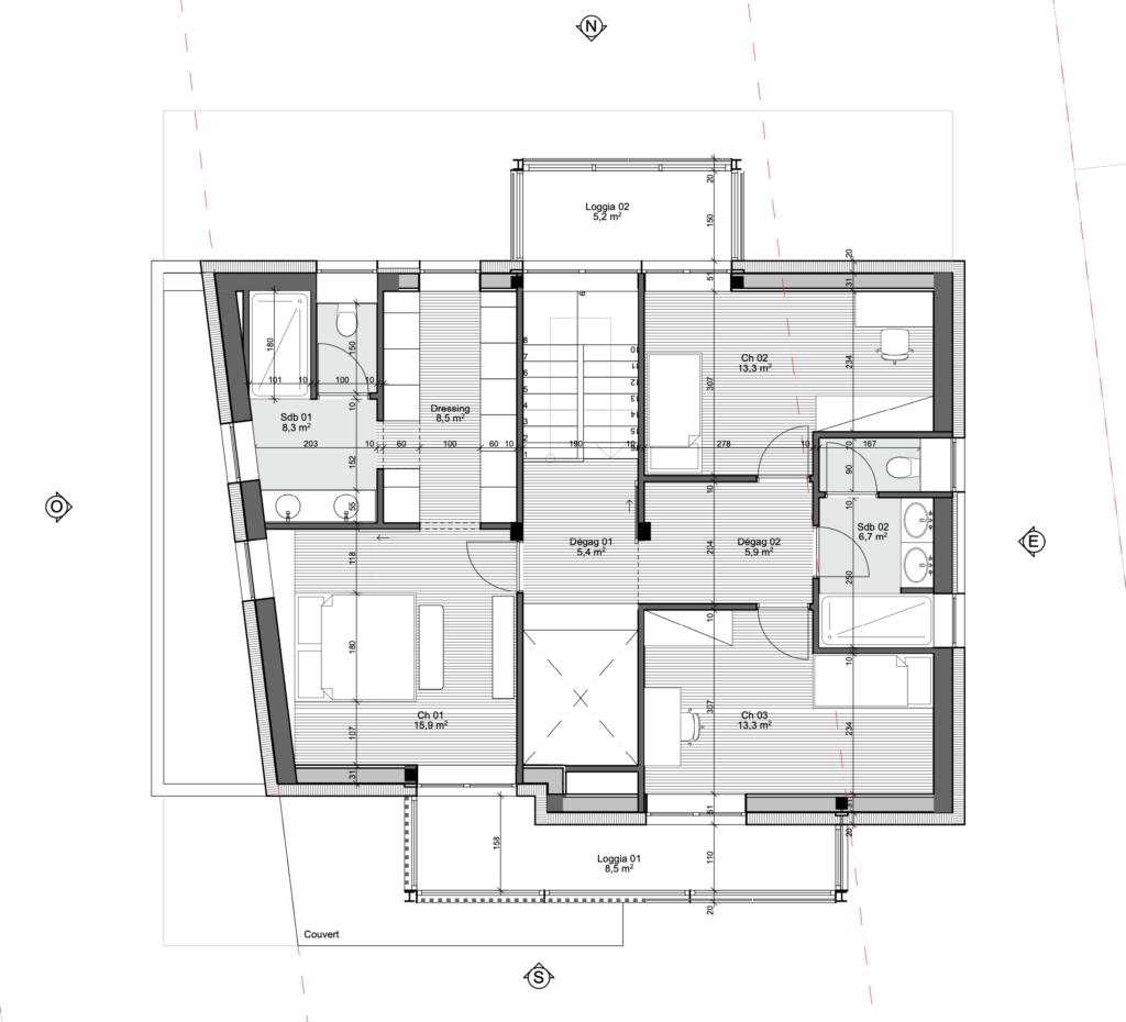
Transformation d’une villa individuelle
Chambésy - GE
Date du projet : 2025
Date de réalisation : 2026
Surface brute de plancher : 234m2
Transformation d’une villa individuelle sur 2 niveaux et sous-sol
La société
Présentation
Collaborateurs
Clients
Plan-net
Back
Architecture
Artisanal
Bureau
Commercial
En cours
Logement
Restauration
Back
Contact
× Close Panel