La société
Présentation
Collaborateurs
Clients
Plan-net
Architecture
Artisanal
Bureau
Commercial
En cours
Logement
Restauration
Contact
Architecture
Tous
Artisanal
Bureau
Commercial
En cours
Logement
Restauration
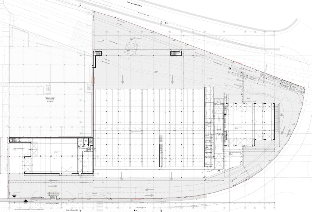
Construction d’un bâtiment de stockage
Satigny - GE
Date du projet : 2024
Superficie : 61'651 m2
Projet de construction d’un bâtiment de stockage de 6 étages
La société
Présentation
Collaborateurs
Clients
Plan-net
Back
Architecture
Artisanal
Bureau
Commercial
En cours
Logement
Restauration
Back
Contact
× Close Panel